Schéma conceptuel d'un éco-digesteur

Description générale de la technologie

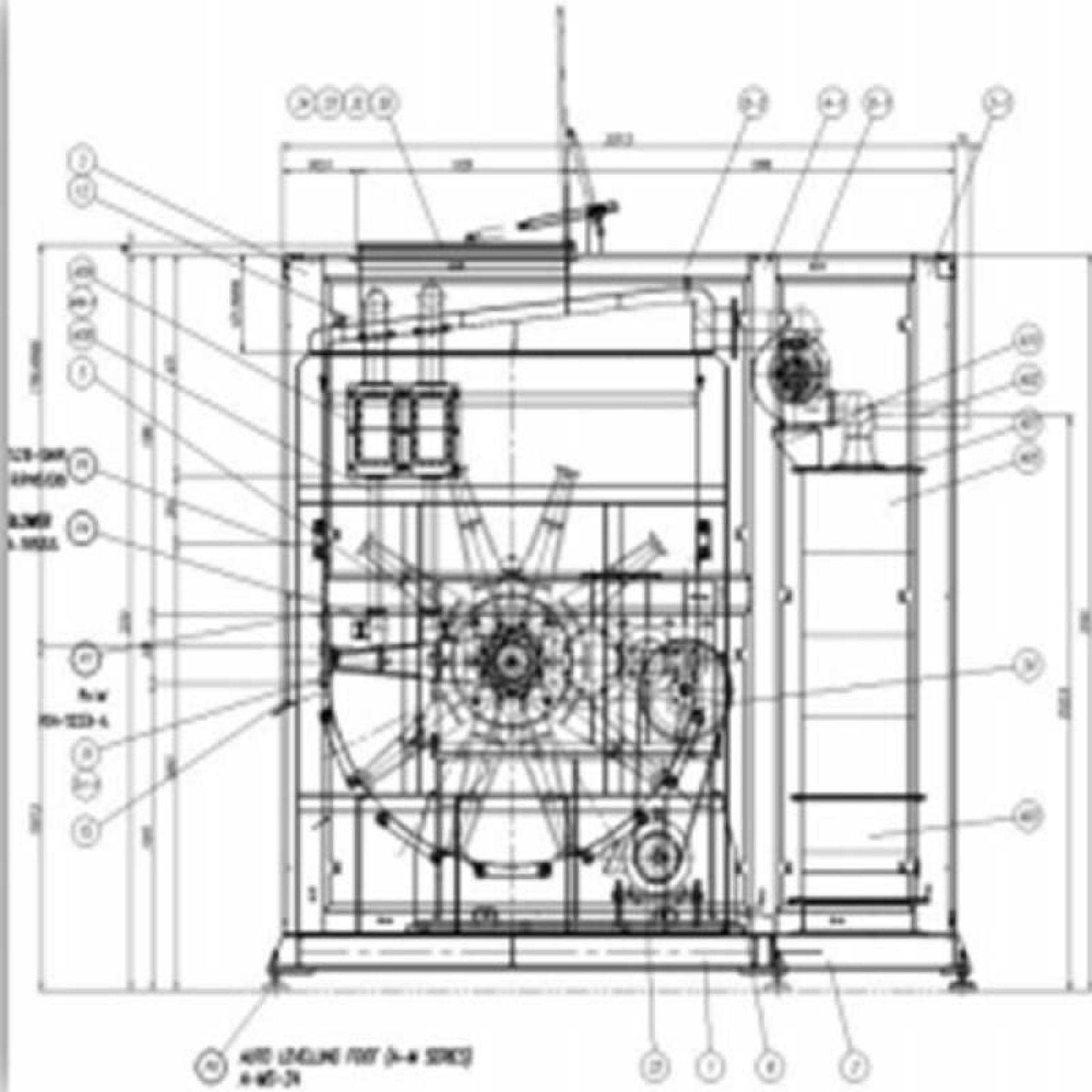
Chaque appareil  est entièrement conçu en inox alimentaire et comprend les éléments suivants :

  • Une cuve fermée hermétiquement et équipée de bras brasseurs à faible vitesse d'entrainement.
  • Une résistance entourant la cuve, accompagne la montée en température, liée aux micro-organismes existants jusqu'à 70°.
  • Un  panneau de contrôle tactile est lisse et étanche
  • Une trappe à déchets sur le dessus est montée sur vérins de compensation
  • Une trappe de récupération, sur la façade de l'appareil permet une récupération automatique du digestat
  • Trois moteurs actionnant le brassage, l’entrée d’air et l’évacuation d’air, accessibles par démontage des panneaux d'habillage de l'appareil

Un contrôle et régulation permanent du niveau de la température et de l'hygrométrie de la cuve.

Nous écrire
Les champs indiqués par un astérisque (*) sont obligatoires
Partager :
Respect de l'environnement
Vente
Livraison - mise en route - formation